87 mill, Elsah, IL 62028
Toggle Navigation
Images
Videos
Floor Plans
Map
87 mill
Elsah, IL 62028
Scroll to Content
Images
Exterior
Mainfloor
Upstairs
Drone
Slideshow
Photo Grid
Hide
Previous
Next
Show more
Videos
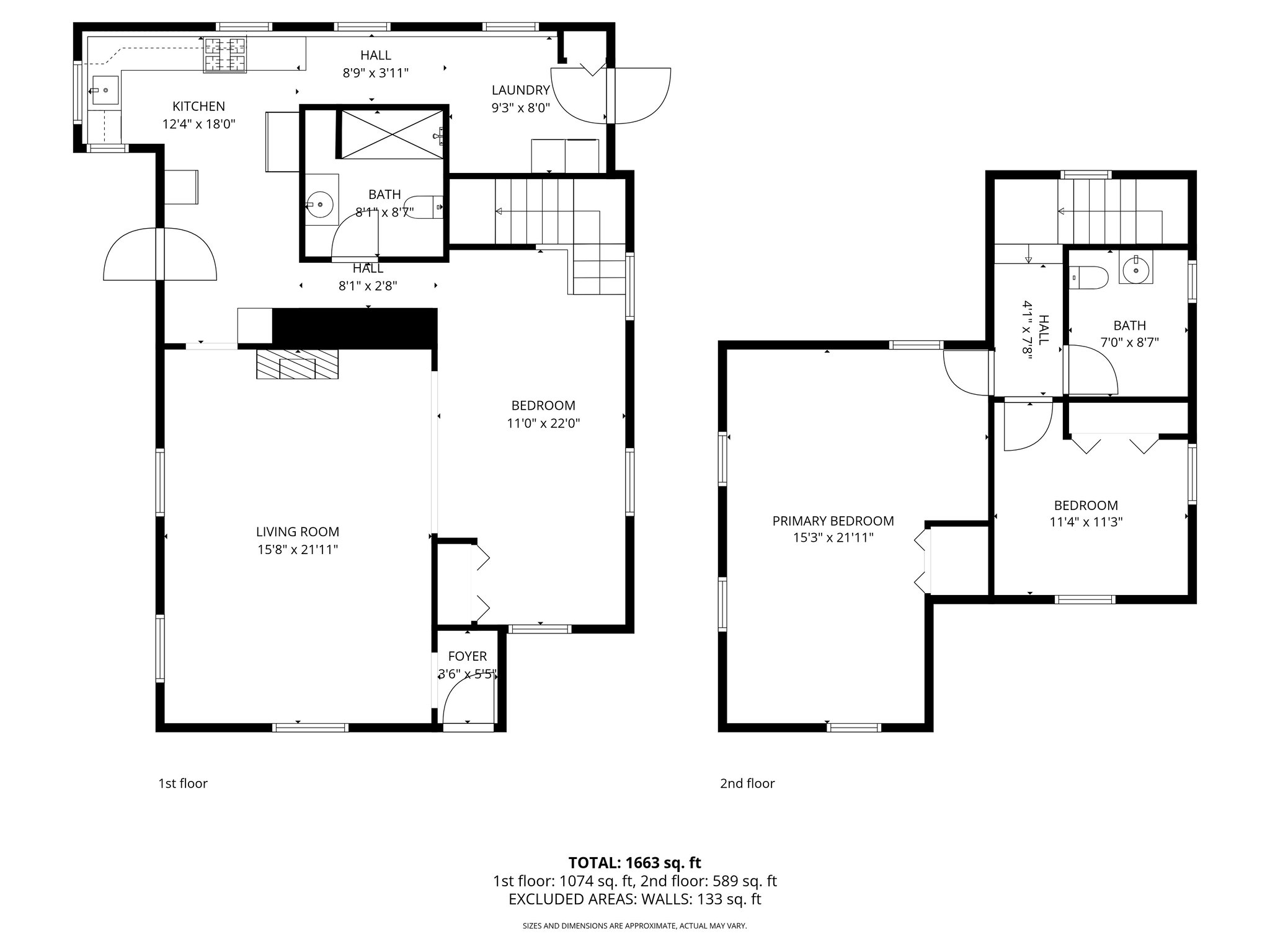
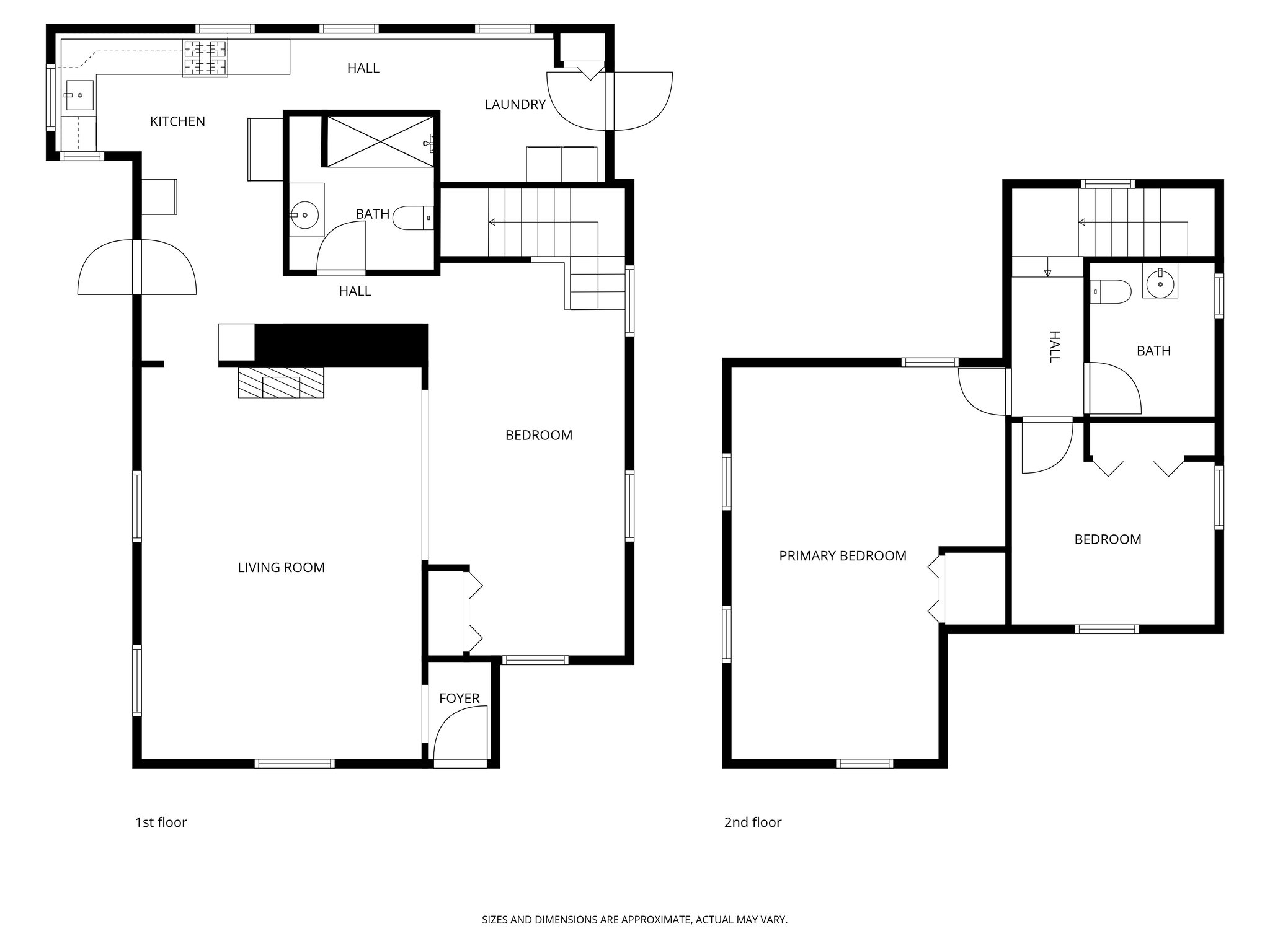
Floor Plans
Slideshow
Photo Grid
Hide
Previous
Next