909 Royal Heights Rd, Belleville, IL 62226
Toggle Navigation
Images
Floor Plans
Map
909 Royal Heights Rd
Belleville, IL 62226
Scroll to Content
Images
Exterior
Mainfloor
Slideshow
Photo Grid
Hide
Previous
Next
Show more
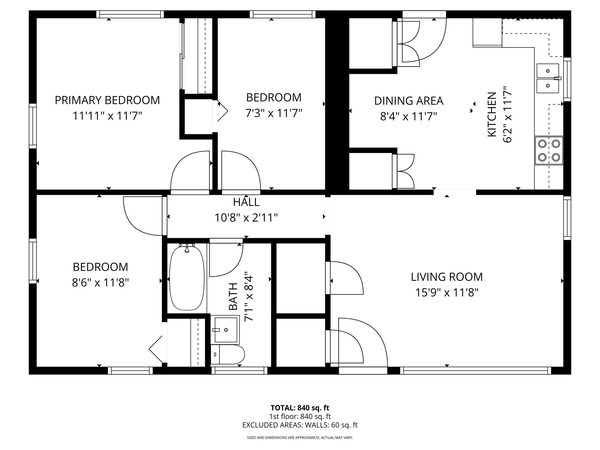
Floor Plans
Slideshow
Photo Grid
Hide
Previous
Next